Thenaers Vastgoed
Opheersstraat 80/A 3870 Opheers
E.info@thenaers.be

INSTAPKLARE LUXE EN ENERGIEZUINIGE NIEUWBOUWWONING MET 4 SLAAPKAMERS EN 2 BADKAMERS. Vanaf € 544.132

Nieuw
Truierweg 2F, 3800 Sint-Truiden
Ref: TRUIERWEG LOT 8
4 slaapkamers
2 badkamers
185 m² woonopp.
716 m² grondopp.
EPC: 10 kWh/m2/jaar
bouwjaar: 2025


INSTAPKLARE LUXE EN ENERGIEZUINIGE NIEUWBOUWWONING MET 4 SLAAPKAMERS EN 2 BADKAMERS.

Ben je op zoek naar een stijlvolle, energiezuinige woonst in een rustige, groene omgeving? Dan stellen we je graag deze prachtig afgewerkte nieuwbouwwoningen in Wilderen voor. Dankzij hun unieke ligging trek je je thuis terug uit de dagelijkse hectiek, maar geniet je toch in no time van het bruisende Sint-Truiden. Deze woningen in pastorijstijl maken deel uit van de eerste fase van een prestigieus nieuwbouwproject. In een latere fase worden ook 4 moderne nieuwbouwwoningen en 1 gerenoveerd pand in de Orgelstraat te koop gesteld. Hou ons dus zeker in de gaten. En vertel het voort.


Deze zes halfopen bebouwingen beslaan elk een perceel van 7 are. De hoge woningen zijn voorzien van 3 slaapkamers, en worden telkens geflankeerd door de lage woningen met 4 slaapkamers. Allen zijn instapklaar en tot in de puntjes afgewerkt met hoogwaardige materialen, zoals de parketvloer op de eerste verdieping. Lot 3 en lot 8 hebben deze vloer ook op de benedenverdieping, terwijl de andere woningen zijn voorzien van een stijlvolle keramische Travertinvloer.

Comfort binnen én buiten
De sleutelwoorden? Hedendaagse luxe en comfort. De hal is open en licht, en die trend zet zich telkens verder doorheen het volledige pand. In de leefruimte zijn het de grote raampartijen die zorgen voor veel lichtinval. Met het panoramische zicht op de tuin als kers op de taart. Elke groene oase werd volledig aangelegd met onder andere fraaie bomen, een sfeervolle buitenverlichting en een ruim tuinhuis. Aan de oprit bevinden zich alvast wachtbuizen voor een laadpaal. Zo ben je helemaal klaar voor de toekomst.

Strak en opgeruimd
Nog een blikvanger is de moderne open keuken. Hierin vind je alle kwaliteitsapparatuur die je nodig hebt voor je culinaire avonturen. Masterchef of eerder keukenkluns? Maakt niet uit, want het draait vooral om genieten, toch? Naast de keuken is er een praktische berging voorzien met aansluitingen voor je wasmachine en droogkast. Een extra pluspunt is dat de nutsvoorzieningen op elegante wijze werden weggewerkt. Met andere woorden: zelfs deze ruimte geeft een strakke en opgeruimde indruk.

Bovenverdiepingen
Op de eerste verdieping bevinden zich drie of vier slaapkamers – naargelang het woningtype dat je verkiest. De eigentijdse badkamer met inloopdouche werd stijlvol afgewerkt met strakke zwarte kranen, een ruim badkamermeubel en een verlichte, verwarmde spiegel. Je tot in de puntjes verzorgen wordt hier alvast een genot. Lot 4, 5 en 8 hebben ook nog een extra badkamer op de begane grond. Tenslotte leidt een tweede trap naar de zolderverdieping. Deze polyvalente ruimte zet je volledig naar je hand: wordt het een gastenkamer of extra slaapkamer? Een leuke speelkamer? Of misschien wel een home gym? Laat je fantasie de vrije loop.

Duurzaamheid
Uiteraard betekent modern wonen ook energiezuinig wonen. Airco (koel en warm), een ventilatiesysteem type D, 10 zonnepanelen, een waterverzachter en een indrukwekkend E-peil van slechts 10 garanderen duurzaam wooncomfort.

Kortom, deze nieuwbouwwoningen op de Truierweg zijn tot in de puntjes afgewerkt. Neem dat – met twee lagen rigoureus schilderwerk – gerust letterlijk!

Zie je een nieuw leven in zo’n luxueuze nieuwbouwwoning wel zitten? Geef me een seintje, zodat je snel een kijkje kunt nemen.
 

Naam
Jean-Jacques Thenaers
Tel.
GSM
E-mail

Prijs
Vanaf € 544.132
Grondwaarde
€ 140.000
Constructiewaarde
€ 404.132
BTW
€ 84.868
Registratiekosten
€ 16.800
Totale prijs
€ 645.800

Gelijkvloers

inkomhal
6,89 m²
Toilet
2,27 m²
Woonkamer
40,12 m²
Eetkamer
Keuken
19,72 m²
Berging
4,68 m²
Slaapkamer
15,48 m²
Badkamer
5,26 m²
Tuin
Volledig aangelegde voor- en achtertuin. De tuin is omheind met een zwarte, kwalitatieve, afsluiting.
Terras
Aangelegd terras.
2x Autostaanplaats

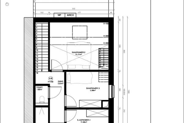
Verdieping 1

Nachthal
6,03 m²
Slaapkamer
15,57 m²
Slaapkamer
9,98 m²
Slaapkamer
11,25 m²
Badkamer
6,93 m²
Toilet
1,8 m²

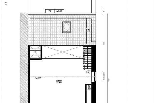
Verdieping 2

Zolder
23,45 m²
Volledig afgewerkte zolder met airco.

EPC
10 kWh/m2/jaar
Label
epc waarde a
10 kWh/m2/jaar

Totale opp. grond
716 m²
Bewoonbare opp.
185 m²
Breedte huis
650 m
Breedte grond
9 m
Diepte huis
13 m

Airco
Ja
Distributie
Ja
Elektriciteit
Ja
Internet
Ja
Regenwater
Ja
Riolering
Ja
Stadswater
Ja
Vloerverwarming
Ja
Warmtepomp
Ja
Zonnepanelen
Ja

Beglazing
Dubbele
Dak
Zadeldak
Keuken
Geïnstalleerd
Raamwerk
Aluminium
Verwarming
Warmtepomp

Bouwjaar
2025
Bebouwing
Halfopen
Algemene staat
Luxe afwerking
Beschikbaar
Bij akte, na betaling van de totale koopsom.
Elektriciteitscertificaat
Ja, Conform
Lift
Neen

Overstromingsgevoeligheid
Niet overstromingsgevoelig
Afgebakende zone
Niet van toepassing
G(ebouw)-score info
A
P(erceel)-score info
A
Stedenbouwkundige bestemming
Woongebied met landelijk karakter
Dagvaarding voor stedenbouwkundige overtreding
Geen rechterlijke herstelmaatregel of bestuurlijke maatregel opgelegd
Bouwvergunning
Bouw vergund
Verkavelingsvergunning
Ja
Voorkooprecht
Neen
Beschermd erfgoed
Neen
Renovatieplicht
Niet ingegeven

Laten we de kosten berekenen

€ 645.800
1.5%
20 jaar
EUR/maand